Description
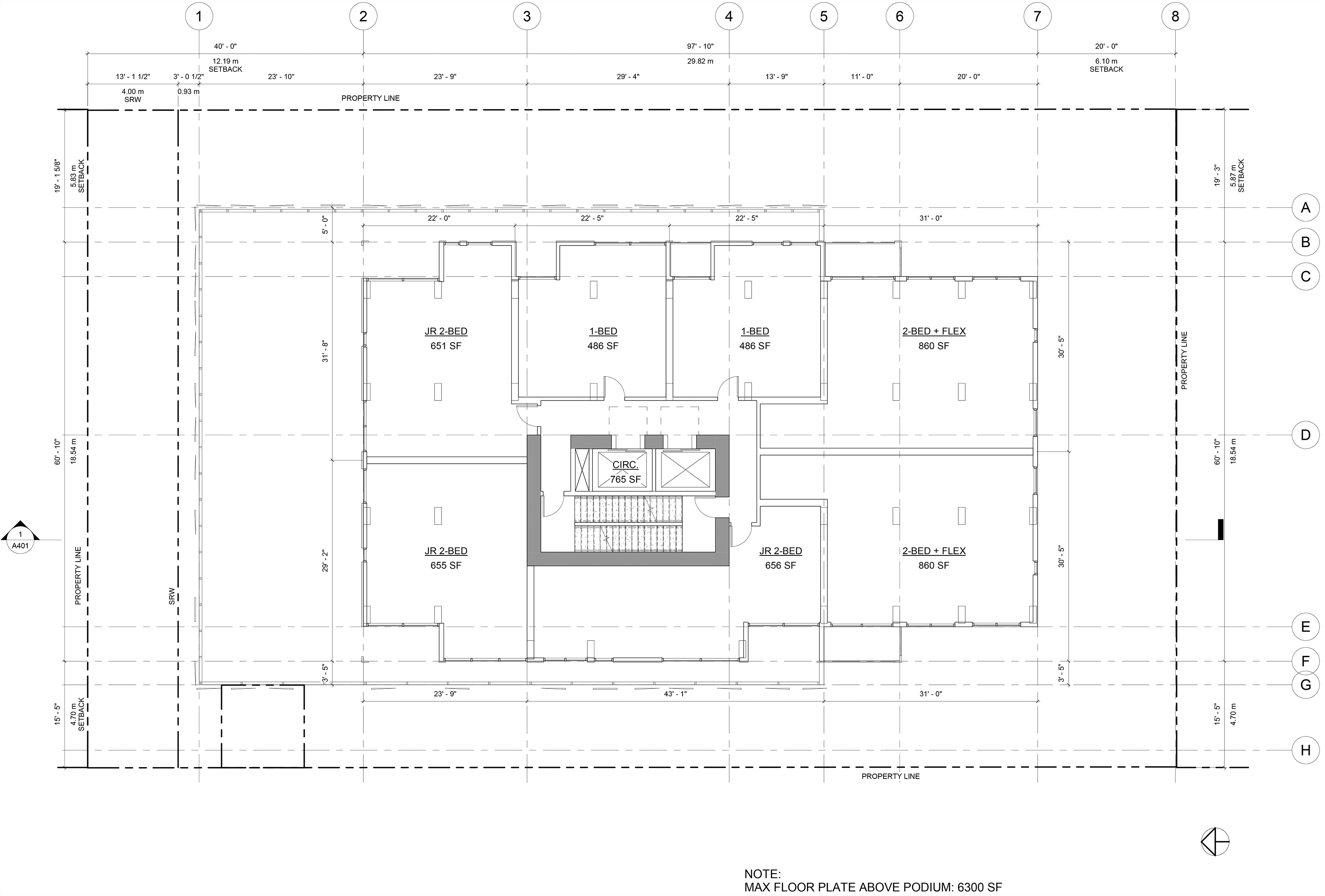
8655 Granville is a mid-rise mixed-use project located along Granville Street in Vancouver. The design layers retail, office, and residential uses within a stepped podium-and-tower form, reinforcing an active streetscape while transitioning sensitively to the surrounding neighbourhood.
Balanced Mixed-Use Form
The project layers residential uses above a compact commercial base, creating a clear separation between public-facing programs and private living while supporting long-term flexibility and livability.

Stepped Massing & Refined Expression
A stepped podium and set-back upper volumes reduce perceived height and respond to adjacent development. Articulated façades and a restrained material palette add depth and rhythm, supporting a contemporary yet contextual architectural presence.
Pedestrian-Scaled Street Activation
Active retail and office frontages, generous glazing, and clear entry points strengthen engagement along Granville Street, reinforcing a comfortable and inviting pedestrian experience.


