Description
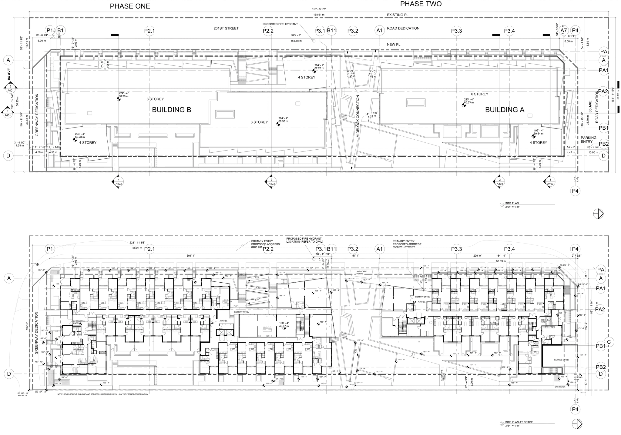
Azure Grove is a two-building, six-storey residential project in Langley’s rapidly growing Carvolth neighbourhood, introducing compact studio homes as an accessible entry point into the housing market. The project responds to emerging affordability pressures by combining efficient unit planning with a clear urban and architectural framework, supporting higher density while maintaining livability and neighbourhood compatibility.
Housing Entry Strategy
The project explores studio-based housing as a deliberate entry-level typology, addressing first-time buyers and downsizers through compact, well-organized units. Spatial efficiency, clear circulation, and daylight optimization are used to maximize livability within reduced unit sizes, supporting attainable ownership without compromising quality.

Neighbourhood-Scale Density
Azure Grove is structured as a mid-rise form that bridges low-rise residential fabric and future urban growth. Massing, step-backs, and façade articulation are carefully calibrated to maintain a human scale at street level while achieving density aligned with Carvolth’s long-term development vision.
System-Driven Design Approach
The project applies a repeatable planning and building system to balance cost control, constructability, and architectural clarity. Consistent structural grids, rationalized envelopes, and material strategies support efficient delivery while maintaining a cohesive identity across both buildings.


