Description
Broadway Hotel is an ongoing hotel development proposal located along Vancouver’s main Broadway corridor. The project begins at the land-assembly stage and is strategically positioned for collaboration with established international hotel brands such as Hilton and Marriott. Set within a dense, commercial urban context, the proposal focuses on creating a compact, efficient hotel typology that aligns with Broadway’s evolving role as a major transit, employment, and hospitality corridor.
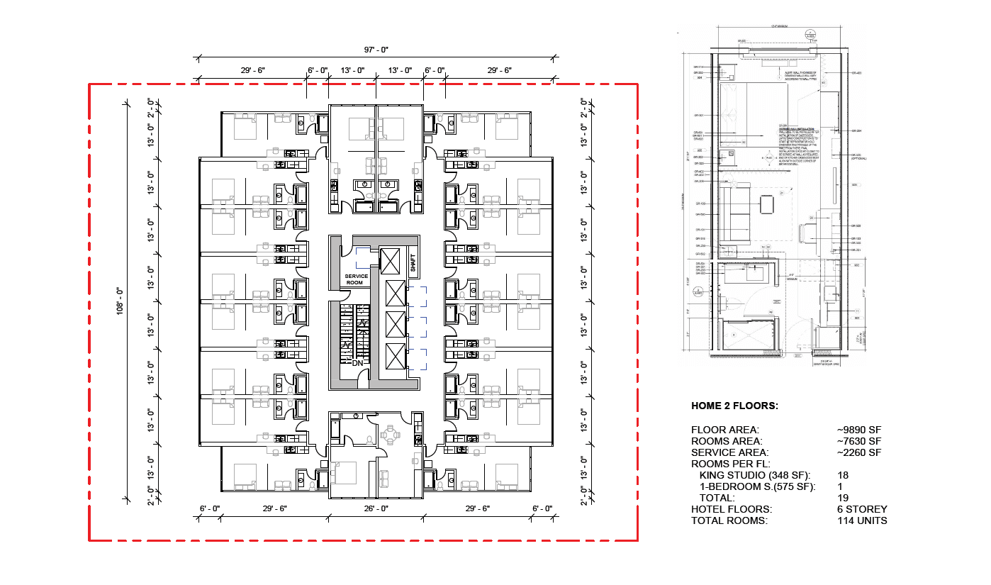
Brand-Ready Hotel Concept
Program and massing developed to align with international hotel brand standards, supporting future operator partnerships.
Urban, Transit-Oriented Location
Located on Broadway, the project leverages high visibility, strong transit access, and proximity to employment and medical districts.






