Description
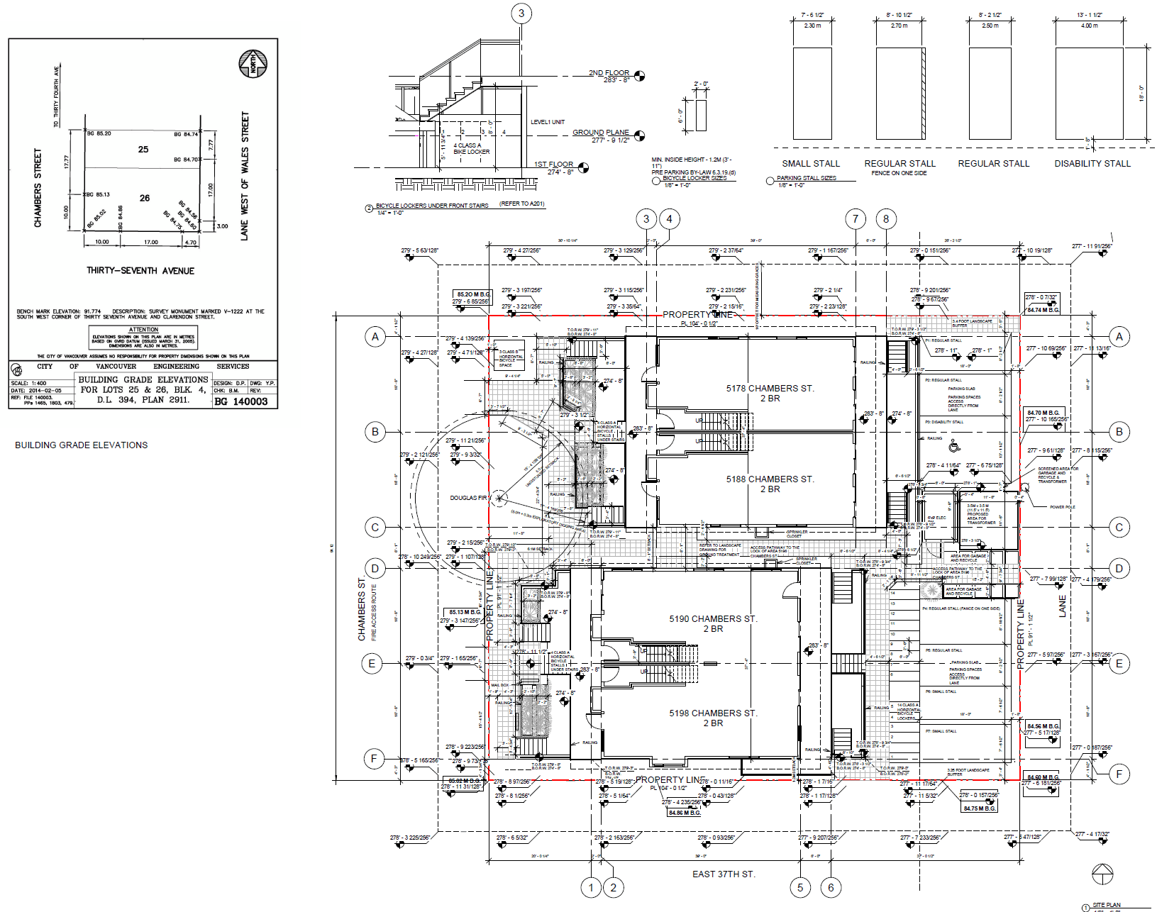
This townhouse project was selected as a reference example under the Vancouver Plan, demonstrating how missing-middle housing can be sensitively integrated into established neighbourhoods. The design responds directly to updated multiplex policies, balancing increased density with a scale, form, and character that align with surrounding residential fabric.
Replicable Model
Designed as a practical reference, the project provides a clear framework that can be adapted across similar sites, supporting faster approvals and consistent outcomes for future developments.
Government Reference Project
The project translates Vancouver Plan and multiplex guidelines directly into built form, demonstrating compliant density, setbacks, unit mix, and access strategies in a clear and replicable way.
Neighbourhood Fit
Massing, roof forms, and material choices are scaled to match the surrounding context, ensuring the development feels residential, familiar, and integrated rather than disruptive.



