Description
Modular Tower is a research-driven housing proposal exploring the application of modular construction within a high-rise residential context. Developed as a design and feasibility study, the project examines how prefabricated systems can support efficient delivery, adaptability, and long-term performance while maintaining architectural clarity and buildability at scale.
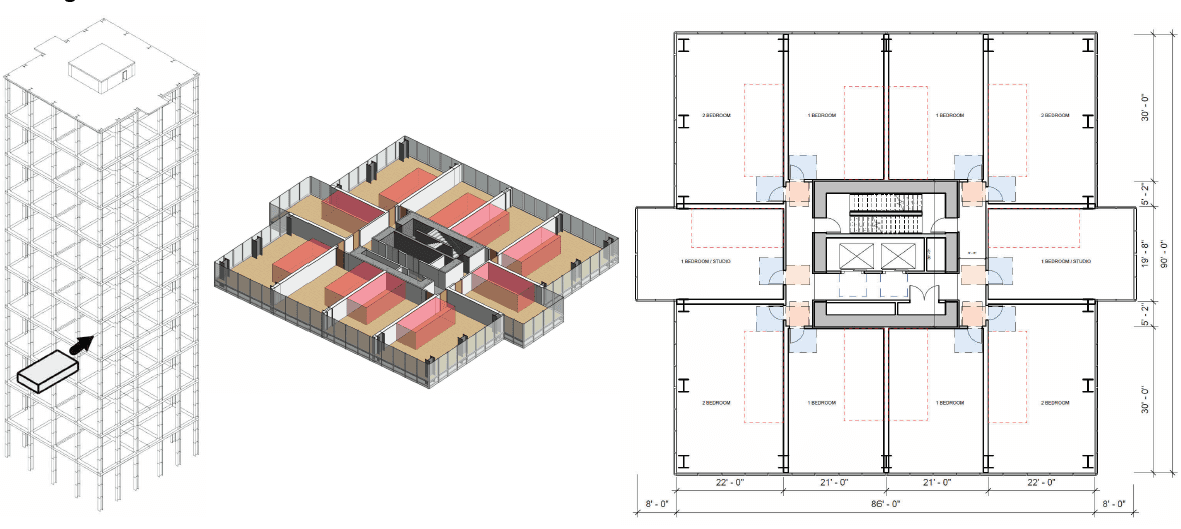
Modular Strategy at Vertical Scale
The project investigates modular stacking strategies, structural grids, and service coordination within a tower typology. Unit layouts and core organization are aligned to support prefabrication, repeatability, and efficient vertical assembly while allowing flexibility in unit mix and program.
Integrated Building Form
Massing, circulation, and amenity spaces are organized to support density and livability within a compact footprint. The design balances repetition with variation, creating a coherent tower form that responds to functional and structural requirements.
Platform for Future Housing Systems
Beyond a single proposal, the project serves as a testing framework for modular feasibility, construction workflow, and regulatory alignment at a high-rise scale. Lessons from the study inform future applications of modular systems for large residential developments.







