Description
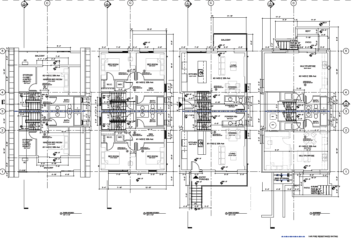
Woodstock is a pilot residential project developed to test and refine a modular panel system within a real construction context. The project focuses on translating modular thinking into a buildable, code-compliant residential design. The intent is not only to deliver housing, but to validate a repeatable system that can scale to future multiplex and low-rise residential projects.
Modular Space Focused
The design explores panelized construction logic, dimensional coordination, and assembly sequencing within a conventional residential typology. Floor plans, structural grids, and building envelopes are carefully aligned to support efficient fabrication and installation while maintaining architectural flexibility.
Buildability and Workflow Testing
Woodstock serves as a testbed for construction workflows, including panel transport, on-site handling, and installation sequencing. The project emphasizes clarity between design, fabrication, and site execution, helping identify challenges early and reduce uncertainty in future modular applications.
Foundation for Future Modular Housing
Rather than a one-off prototype, Woodstock is positioned as a learning project that informs future developments.







